IMPLANTACIÓN

Inicio / Monta tu ferretería / Implantación AragÓn

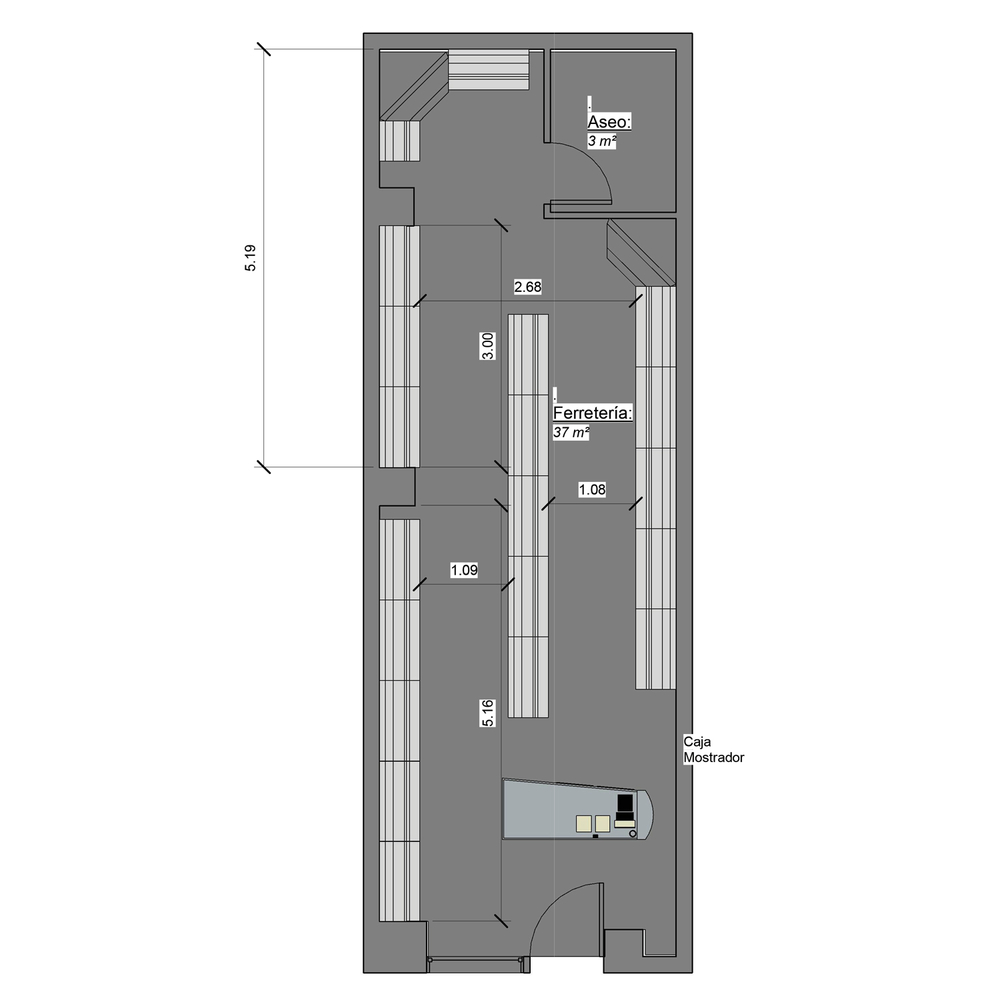
IMPLANTACIÓN ARAGÓN

ARAGÓN

Implantación de ferretería doméstica realizada en población de Aragón.


DATOS IMPLANTACIÓN:


- Ubicación: Calle Principal

- Tamaño local: 40 m2

- Metros lineales de expositores: 20 lineales 

 

El cliente, asesorado por nuestro equipo de implantaciones, opta por surtido muy variado que abarca desde herramientas y bricolaje hasta ferretería doméstica, pasando por, electricidad básica y fontanería, menaje y jardín.


Además del asesoramiento de la gama de productos, nuestro cliente, y en ese caso su ferretería ha contado con los siguientes servicios:


· Estudio del local e iluminación.


· Realización de planos.


· Diseño las zonas de venta.


· Propuesta de gamas de productos.


· Lineales atractivos, duraderos y funcionales.


· Cabeceras adaptadas al producto expuesto.


· Posibilidad de tener todo el stock en exposición, eliminando almacén.


· Servicio llave en mano.


· Resultado óptimo, ubicación coherente del producto por gremios / usos.


· Imagen de negocio bien estructurado.

 


Galería de imágenes


Contacta con nosotros y monta tu ferretería

RELLENA EL SIGUIENTE FORMULARIO Y VENDE SATURNIA

Rellene este formulario y nos pondremos en contacto con usted en el menor tiempo posible
¿De dónde es la empresa?

*Abstenerse particulares, sólo venta a tiendas y empresas minoristas y mayoristas.

SATURNIA forma parte del grupo:

AFT: A forged tool